

Villa Romero – Contemporary 3-Bedroom Property for Sale in Benahavís
- €2,600,000
- 5 Bedrooms
- 558 m² build
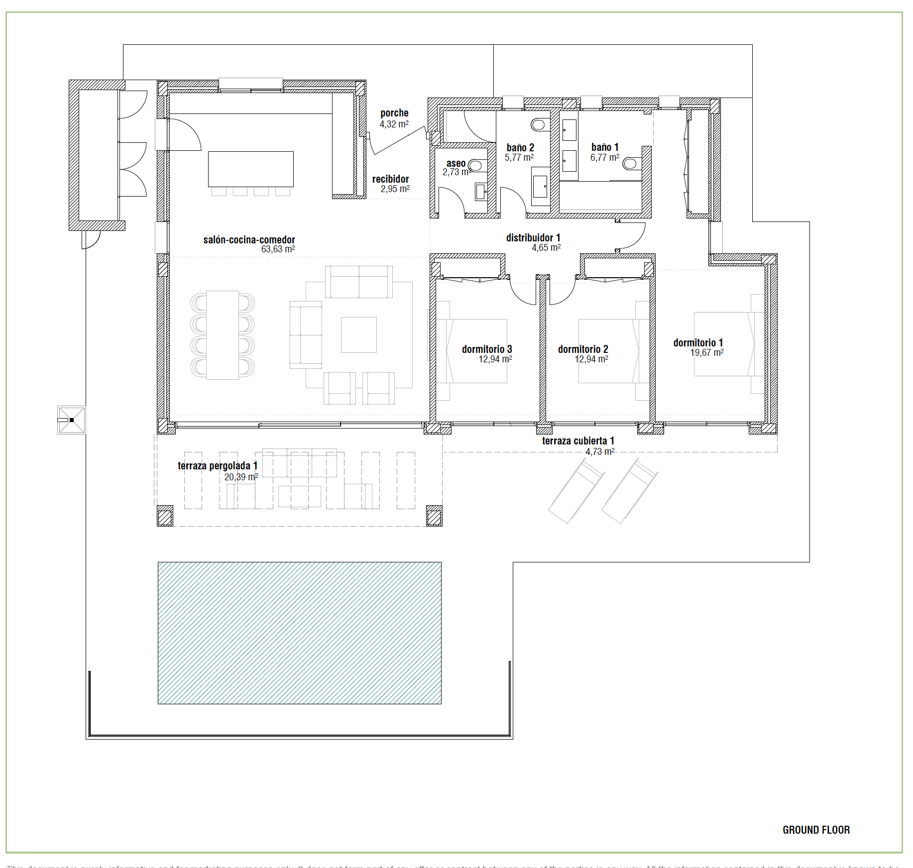
Set within the exclusive gated development of Finca de Jasmine in the lower hills of Benahavís, Villa Romero offers a rare opportunity to acquire a stylish single-level home in one of the Costa del Sol’s most naturally captivating locations. With three bedrooms and three bathrooms distributed across a thoughtfully laid-out floor plan, this villa exemplifies modern Mediterranean living. The total living space includes an expansive open-plan interior, where the fully fitted kitchen, lounge, and dining area come together under extra-high ceilings and expansive windows that flood the property with natural light.
Built with meticulous attention to quality and sustainability by Altavista Project Development and launched in 2021, the villas within Finca de Jasmine have been designed to harmonize with their stunning natural surroundings. Organic materials and contemporary architectural lines combine to create properties that feel both luxurious and environmentally attuned. Romero Villa is no exception—it reflects this philosophy through every detail, from the seamless indoor-outdoor flow to the serene views that surround the property on all sides.
The layout is spacious and user-friendly, with all living areas located on a single level—ideal for families, retirees, or those seeking effortless day-to-day comfort. Each bedroom comes with its own en-suite bathroom, ensuring privacy and convenience, while the high ceilings enhance the sense of openness throughout. The living area extends naturally onto the private garden and terrace, where a tranquil swimming pool and Mediterranean landscaping complete the outdoor living experience.
Finca de Jasmine is not just a development—it’s a lifestyle concept designed to offer total peace of mind and exceptional convenience. The gated community offers 24-hour security, and the community fee includes full maintenance of both the private gardens and individual pools. Residents also benefit from exclusive access to the on-site Clubhouse, which features a heated indoor swimming pool, a well-equipped gym, sauna, and flexible office space—ideal for remote working or wellness-focused living.
Strategically located within what is known as the ‘Golden Triangle’ of the Costa del Sol—between Marbella, Estepona, and the mountain village of Benahavís—this development is surrounded by rolling hills, olive groves, and panoramic sea views. Its lower Benahavís location provides easy access to coastal hotspots, with the golden beaches and bustling marina of Puerto Banús reachable in just under 15 minutes by car. Meanwhile, the charming old town of Benahavís, famous for its traditional Andalusian restaurants and vibrant local culture, is just a short drive through a scenic mountain gorge.
Outdoor lovers will be drawn to the countless hiking and cycling trails in the area, as well as nearby golf courses such as Los Arqueros, La Quinta, and El Higueral. For beach enthusiasts, the closest Blue Flag beaches are only five minutes away, providing the perfect weekend escape. Everyday essentials, including international schools, shops, and dining options, are within a convenient 10-minute radius, making Finca de Jasmine an ideal base for both permanent residents and holiday homeowners.
Villa Romero at Finca de Jasmine stands out not only for its sleek contemporary design and tranquil environment but also for its strong long-term value. As demand for high-quality, lock-and-leave properties in secure, nature-integrated communities continues to rise, this home presents a compelling opportunity for lifestyle buyers and investors alike. With panoramic views, full-service amenities, and a highly desirable location in Benahavís, this villa represents modern Mediterranean living at its best.
- HRB-01047P
- Villa
- La Alqueria, Benahavis
- 5 Bedrooms
- 5 Bathrooms
- 3 on-suite
- 558 m² build
- 28 m² terraces
- 632 m² plot
- Private Pool
- Private Garden
- Carport Garage - 2 Parking spaces
- Built in 2026
The prices displayed on the Homerun Brokers website are for informational purposes only and may not reflect the final sale or rental prices. Rental rates are subject to seasonal fluctuations, and property sale prices may change before being updated on our platform. Additionally, all listed prices do not include applicable taxes, fees, or other associated costs. For the most accurate and up-to-date pricing, please contact us directly.
- Sea view

Related Properties
Similar Properties for sale in La Alqueria









